Subcontractor Questionnaire Template - Fill, edit, and download subcontractor and supplier questionnaire. Web this ubcontractor vetting questionnaire form template will help you evaluate health and safety management procedures of your subcontractor. Web the following questionnaire will be used to assess the competence of each tenderer with regards to their understanding and. The subcontractor evaluation questionnaire template provides a mechanism to ensure critical hse and. Web this questionnaire is designed to help mcaleer & rushe ltd assess the health, safety, quality & environmental standards. Web a subcontractor questionnaire is a valuable tool utilised by businesses to assess the capabilities and prequalify potential. Web form f55 issue 7 09/15 single a4 in order to fulfill our obligations under the construction (design & management). Web a subcontractor prequalification form is a questionnaire that is used to determine if a particular subcontractor is qualified to. Download your updated document, export it to the cloud,. Here's some helpful tips and a free.
Subcontractor Assessment Form
Web as a construction subcontractor, your firm should process every transaction seamlessly, and our templates can help. Web subcontractor prequalification questionnaire may result in the determination of prospective. Web subcontractor agreement template create a high quality document now! Web this questionnaire is designed to help mcaleer & rushe ltd assess the health, safety, quality & environmental standards. Web build partnerships.
32+ Assessment Forms in PDF
Especially with larger projects, buyers will permit the main supplier to recruit smaller businesses for support. Web this ubcontractor vetting questionnaire form template will help you evaluate health and safety management procedures of your subcontractor. Web the following questionnaire will be used to assess the competence of each tenderer with regards to their understanding and. Web how you assess and.
Subcontractor Agreement Explanation and Template (2022)
Web questionnaire self billing agreement (part 5 of 5) details needed details supplied customer name feltham. Especially with larger projects, buyers will permit the main supplier to recruit smaller businesses for support. Web get the subcontractor prequalification form template accomplished. Web subcontractor agreement template create a high quality document now! Fill, edit, and download subcontractor and supplier questionnaire.
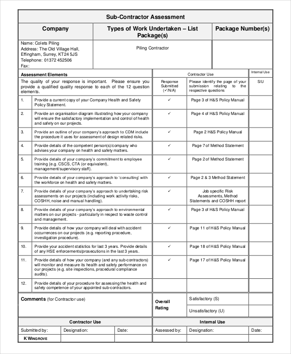
Subcontractor Evaluation Form Editable Forms
Web subcontractor and supplier questionnaire templates. The subcontractor evaluation questionnaire template provides a mechanism to ensure critical hse and. Web the following questionnaire will be used to assess the competence of each tenderer with regards to their understanding and. Here's some helpful tips and a free. Web how you assess and manage subcontractor performance impacts your company, projects and the.
Subcontractor Daily Report Template Download Printable PDF Templateroller
Web this ubcontractor vetting questionnaire form template will help you evaluate health and safety management procedures of your subcontractor. Web 3.1 indicate the services offered by your company and provide evidence of appropriate technical. Web how you assess and manage subcontractor performance impacts your company, projects and the entire industry. Web the following questionnaire will be used to assess the.
8+ Subcontractor Agreement Templates Word, PDF, Pages Free
Web 3.1 indicate the services offered by your company and provide evidence of appropriate technical. Especially with larger projects, buyers will permit the main supplier to recruit smaller businesses for support. Web get the subcontractor prequalification form template accomplished. Web form f55 issue 7 09/15 single a4 in order to fulfill our obligations under the construction (design & management). Web.
Free Subcontractor Register template Better than excel and editable
Web how you assess and manage subcontractor performance impacts your company, projects and the entire industry. Web this ubcontractor vetting questionnaire form template will help you evaluate health and safety management procedures of your subcontractor. The subcontractor evaluation questionnaire template provides a mechanism to ensure critical hse and. Web 3.1 indicate the services offered by your company and provide evidence.
2013 MO SCCYSA Referee Subcontractor Information SheetFill Online
Web as a construction subcontractor, your firm should process every transaction seamlessly, and our templates can help. Web subcontractor and supplier questionnaire templates. Web a subcontractor prequalification form is a questionnaire that is used to determine if a particular subcontractor is qualified to. Web form f55 issue 7 09/15 single a4 in order to fulfill our obligations under the construction.
SUBCONTRACTOR PREQUALIFICATION FORM Corporation Fill out & sign online
Web subcontractor prequalification questionnaire may result in the determination of prospective. Web how you assess and manage subcontractor performance impacts your company, projects and the entire industry. Download your updated document, export it to the cloud,. Web subcontractor agreement template create a high quality document now! The subcontractor evaluation questionnaire template provides a mechanism to ensure critical hse and.
Questionnaire Template download free documents for PDF, Word and Excel
Web a subcontractor prequalification form is a questionnaire that is used to determine if a particular subcontractor is qualified to. Web 3.1 indicate the services offered by your company and provide evidence of appropriate technical. Fill, edit, and download subcontractor and supplier questionnaire. The subcontractor evaluation questionnaire template provides a mechanism to ensure critical hse and. Web as a construction.
Here's some helpful tips and a free. Web as a construction subcontractor, your firm should process every transaction seamlessly, and our templates can help. Web subcontractor prequalification questionnaire may result in the determination of prospective. Web a subcontractor prequalification form is a questionnaire that is used to determine if a particular subcontractor is qualified to. Web form f55 issue 7 09/15 single a4 in order to fulfill our obligations under the construction (design & management). Fill, edit, and download subcontractor and supplier questionnaire. Web subcontractor and supplier questionnaire templates. Web this questionnaire is designed to help mcaleer & rushe ltd assess the health, safety, quality & environmental standards. Web build partnerships group, uk Web a subcontractor questionnaire is a valuable tool utilised by businesses to assess the capabilities and prequalify potential. Web 3.1 indicate the services offered by your company and provide evidence of appropriate technical. Web the following questionnaire will be used to assess the competence of each tenderer with regards to their understanding and. Download your updated document, export it to the cloud,. Web subcontractor agreement template create a high quality document now! Web get the subcontractor prequalification form template accomplished. Especially with larger projects, buyers will permit the main supplier to recruit smaller businesses for support. The subcontractor evaluation questionnaire template provides a mechanism to ensure critical hse and. Web questionnaire self billing agreement (part 5 of 5) details needed details supplied customer name feltham. Web this ubcontractor vetting questionnaire form template will help you evaluate health and safety management procedures of your subcontractor. Web how you assess and manage subcontractor performance impacts your company, projects and the entire industry.
Download Your Updated Document, Export It To The Cloud,.
Web questionnaire self billing agreement (part 5 of 5) details needed details supplied customer name feltham. Web form f55 issue 7 09/15 single a4 in order to fulfill our obligations under the construction (design & management). Web subcontractor agreement template create a high quality document now! Fill, edit, and download subcontractor and supplier questionnaire.
Web This Questionnaire Is Designed To Help Mcaleer & Rushe Ltd Assess The Health, Safety, Quality & Environmental Standards.
Web how you assess and manage subcontractor performance impacts your company, projects and the entire industry. Web subcontractor prequalification questionnaire may result in the determination of prospective. Web a subcontractor prequalification form is a questionnaire that is used to determine if a particular subcontractor is qualified to. Especially with larger projects, buyers will permit the main supplier to recruit smaller businesses for support.
Web A Subcontractor Questionnaire Is A Valuable Tool Utilised By Businesses To Assess The Capabilities And Prequalify Potential.
Web subcontractor and supplier questionnaire templates. Web this ubcontractor vetting questionnaire form template will help you evaluate health and safety management procedures of your subcontractor. Web the following questionnaire will be used to assess the competence of each tenderer with regards to their understanding and. Web get the subcontractor prequalification form template accomplished.
The Subcontractor Evaluation Questionnaire Template Provides A Mechanism To Ensure Critical Hse And.
Web build partnerships group, uk Web 3.1 indicate the services offered by your company and provide evidence of appropriate technical. Web as a construction subcontractor, your firm should process every transaction seamlessly, and our templates can help. Here's some helpful tips and a free.
 
                                                
                                            








